Beschrijving

Sfeervol en Instapklaar Dubbel Bovenhuis in Waldeck – Nabij het Strand van Kijkduin!

Op zoek naar een instapklare woning met karakter, comfort én een top ligging? Ontdek dit charmante dubbele bovenhuis in de geliefde wijk Waldeck-Zuid! Met drie slaapkamers, een ruime en lichte woonkamer, moderne afwerking en een gezellige voortuin is dit appartement perfect voor starters én gezinnen die willen genieten van alles wat Den Haag te bieden heeft.

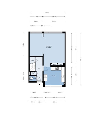
De indeling:
Via de gemeenschappelijke trap vanaf de straat kom je op de eerste etage. Hier loopt een pad langs de verschillende appartementen. Door je eigen voortuin met schuur bereik je de entree van de woning. Je komt binnen in een hal met toegang tot een berging/technische ruimte, een toilet met fonteintje en de trap naar boven. Vanuit de hal loop je door naar de ruime en lichte woonkamer met een halfopen keuken.
De keuken is voorzien van diverse inbouwapparatuur, zoals een vaatwasser, koelkast, vriezer, heteluchtoven en een 5-pits gasfornuis. Door de royale opzet is er genoeg plek om ook een eettafel te plaatsen.
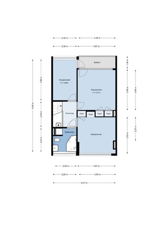
Op de tweede etage vind je een overloop met de cv-ketel en toegang tot drie slaapkamers. De slaapkamer aan de achterzijde heeft bovendien een fijn balkon. De badkamer is uitgerust met een ligbad, wastafel met meubel, aansluiting voor de wasmachine en een extra toilet.

De Locatie: Rust & Stadse Gemakken
Gelegen in het rustige en groene Waldeck-Zuid, met winkels, scholen en openbaar vervoer op loopafstand. Binnen enkele minuten sta je op het strand van Kijkduin – ideaal voor een ontspannende wandeling of zomerse stranddag. Ook de uitvalswegen richting centrum of andere steden zijn uitstekend bereikbaar.

Wat maakt deze woning zo bijzonder?

- Lichte en royale woonkamer met een moderne semi-open keuken, compleet met inbouwapparatuur.
- Drie goed ingedeelde slaapkamers, ideaal voor werken, slapen of als kinderkamer.
- Luxe badkamer met ligbad– begin elke dag in stijl.
- Voortuin met berging, perfect voor je fiets of extra opslag.
- CV-ketel (HR+) uit 2022, dus energiezuinig en betrouwbaar.
- Gelegen op eigen grond – geen erfpacht!
- Actieve VvE met een maandelijkse bijdrage van €170,-.

Vraagprijs: €397.500,- kk. 

Overdracht mogelijk op korte termijn – snel verhuizen is mogelijk!

Een heerlijk, modern appartement op een geweldige locatie – perfect voor wie comfort, ruimte en locatie belangrijk vindt.

Plan snel een bezichtiging en laat je verrassen door de ruimte, sfeer en ligging van dit unieke bovenhuis!

Kenmerken