Description
Sunny and bright 2-bedroom corner apartment with balcony located on the border between the Van Stolkpark and Visserijbuurt. This ready-to-live-in house is approximately 75m2 and is located on the first floor without neighbours on the left and right side. This always well-maintained house offers a lot of possibilities in terms of layout and the windows at the front and side provide a beautiful light. The balcony next to the kitchen is ideal for a sunny cup of coffee in the morning. Kanaalweg is centrally located in Scheveningen with the Van Stolkpark in the backyard, the tram on Scheveningseweg and the shops on Frederik Hendriklaan and Keizerstraat within walking distance.
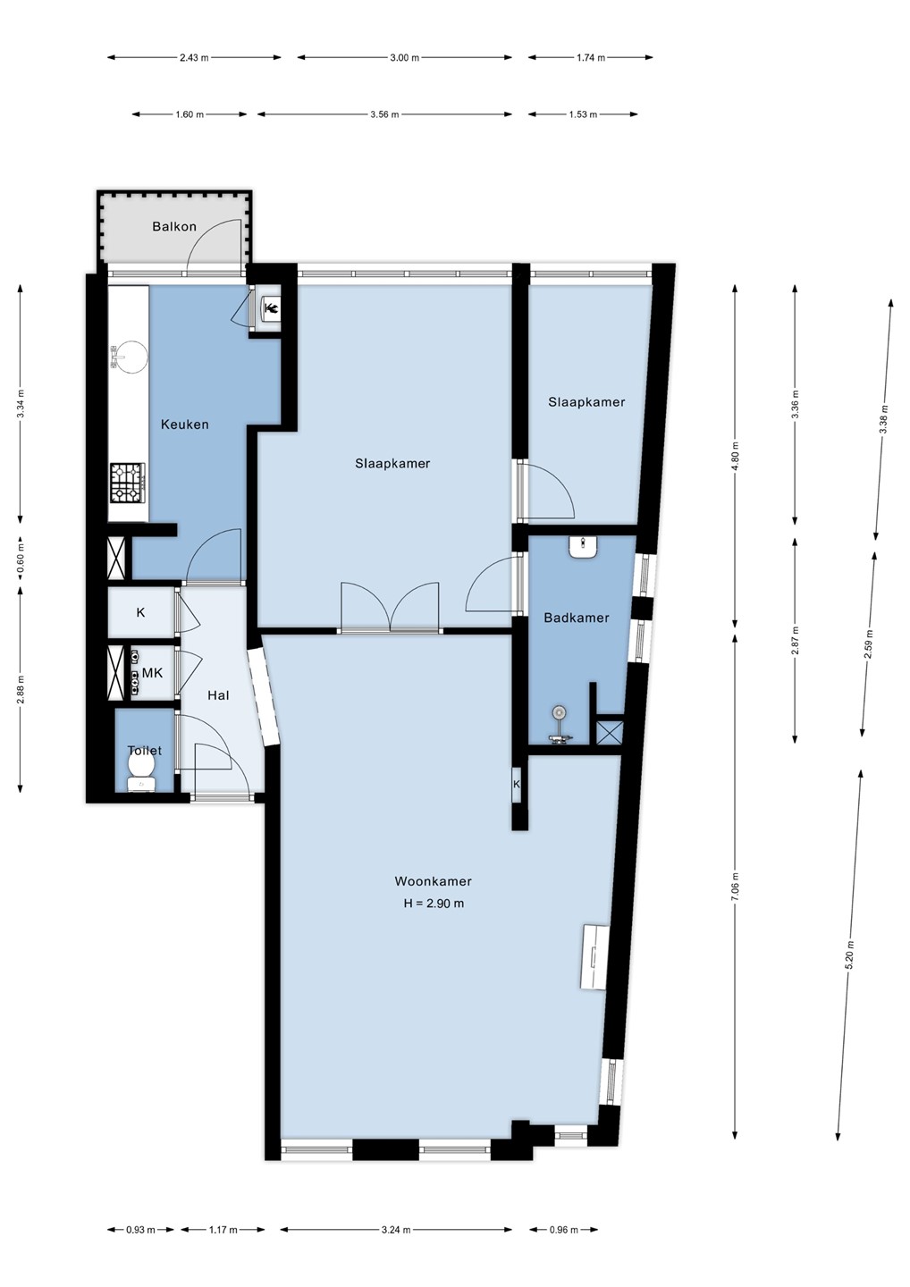
Layout
Shared front door on the ground floor with intercom system and mailboxes for the 3 addresses in the complex. Stairs to the first floor with entrance to the apartment.
Corridor with doors to all rooms.
The spacious living room has windows at the front as well as at the side. On the side wall is the original fireplace which is in working condition. There are several options for furnishing the living room.
French doors to the master bedroom with spacious wardrobe. From this bedroom it is possible to get to the 2nd bedroom, which can easily accommodate a cupboard, desk or single bed.
The bathroom has a sink, closet space and shower. There is also daylight through the windows.
The kitchen has amenities such as a dishwasher, gas hob, fridge, freezer and built-in oven. The washing machine connection is also located in the kitchen.
In the hallway is the toilet and 2 fitted wardrobes.
The floors are made of wood and the house is partly equipped with double glazing. The house is centrally heated with its own boiler of approx. 7 years old and always well maintained.
Location
Located in the Visserijbuurt near the Statenkwartier. With Scheveningen (beach), boulevard and Van Stolkpark a short distance away and approximately 15 minutes from the center by public transport. Public transport stops are within walking distance. Living on the Kanaalweg also means living near OPCW, ICTY, Europol and other international institutions and the French School, as well as the Frederik Hendriklaan shopping street with a wide variety of shops and bars.
Features
- Corner house with beautiful light
- Only neighbours upstairs and downstairs
- Quiet area
- Public transport nearby
- Within walking distance of Frederik Hendriklaan and the beach
- Active VVE and multi-year maintenance plan
- The house is currently in rented condition. The tenant will leave at the end of November.
- Optionally, the house can be sold furnished
Asking price: €375,000,- (costs buyer)
Despite the fact that this information has been compiled with care, no rights can be derived from it.